Co dělat pro rekonstrukci koupelny
Publikováno 07.05.2014 v 19:18 v kategorii Rekonstrukce jádra, přečteno: 81x

Rekonstrukci jádra je dost důležité když si vše na plánujete podle sebe pak oslovíte firmu která se zabývá rekonstrukcemi bytových jader na klíč, firma vám ještě doladí vaš splnění sen.

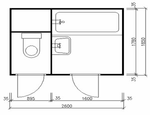
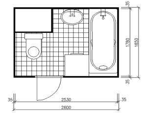
Většina z nás sní o krásnem prostorném bytu s denním světlem, koupelnou a s obrovskou vanou. Realita ovšem často bývá jiná. Obvykle se musíme popasovat s malou koupelnou, běžnou zejména v panelové zástavbě. Není ale nutné propadat obavám. Výrobci koupelnového vybavení s malými koupelnami počítají a přizpůsobili jim sortiment.

Vzhledem k omezenému prostoru je ale nutné si vše pořádně rozmyslet. Budeme v koupelně trávit hodně času? Potřebujeme zde mít úložný prostor? Preferují členové domácnosti sprchu nebo koupel? Nezbytné je také rozhodnutí, do jakých barev koupelnu ladit.
Pokud váháte s odpovědí na některou z otázek, nevěšte hlavu. Mnoho koupelnových studií a prodejců koupelnového vybavení je schopno vytvořit návrh nebo vizualizaci na míru, které rozhodování o vzhledu budoucíkoupelny velmi usnadní.„Kompletní navržení koupelny není jednoduché a jakákoli chyba se často vymstí, protože se později těžko a nákladně napravuje. Mnohdy ji nelze napravit vůbec. Proto našim klientům doporučujeme 3D vizualizace, které jim umožní nahlédnout do koupelny ještě předtím, než je položena první dlaždička.

Komentáře
Celkem 0 komentářů